搜!
首页
轻钢别墅效果图
轻钢别墅案例
轻钢别墅造价
轻钢别墅问答
行业知识
关于我们
瑞沃轻钢别墅
>
轻钢别墅案例
>
一套造型别致的轻钢别墅户型
描述
现在人们在建房时,一味地追求时尚性和美观性,把很多传统的设计理念和功能都丢弃了。其实传统和现代并不矛盾,守旧的同时照样可以做到非常的洋气。今天给大家推荐一套带堂屋等传统功能的二层别墅,造型美观大方,功能非常实用。
外观效果图:
造型别致的二层自建房,坡顶和尖顶完美结合的户型,建筑设弧形门外廊,土烟囱树立清晰可见;大八角形的转角结构设计感十足,各种窗型设计非常美观;整体装饰浑然天成;
建筑采用二层框架结构建设,设计尺寸:开间14.1米,进深12.9米,建筑占地151.4平米,总建筑面积357.2平米,建筑总高度9.5米。
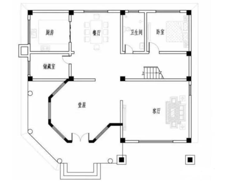
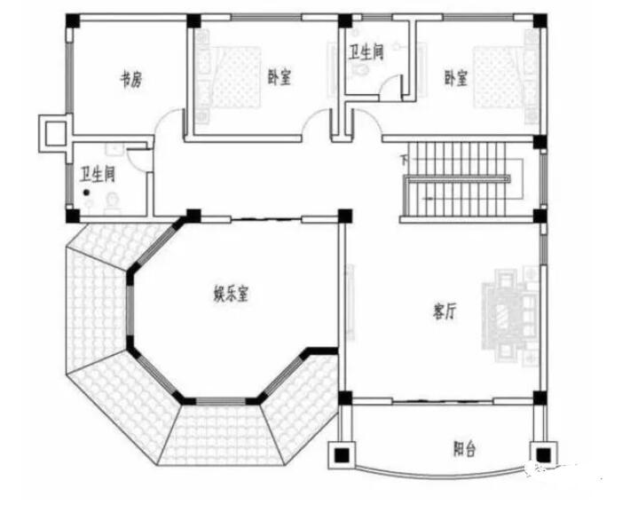
平面布局图:
建筑入户设堂屋,八角形的结构非常亮眼,紧邻客厅,使用方便,厨房、餐厅、卫生间和一间卧室依次布局;二层设带阳台的大客厅和两间卧室,其中一间卧室设卫生间,另设独立书房和公共卫生间;预留大型娱乐室。
建筑不仅有华丽的堂屋,还有两处超大的客厅,厨房带土灶,这些都是传统的具体体现,而且跟现代的装饰效果邻居看后肯定会眼红的。
上一篇:
农村二层轻钢别墅,外观简单漂亮
下一篇:
经典实用的二层农村自建别墅
在线客服 :
服务热线:18790495865(WeChat/whatsapp)
电子邮箱:norrylau@foxmail.com
置业经理:13462075324(刘昊)
公司地址:信阳市鸡公山大街农林学院对面
友情链接:
织梦CMS官方
DedeCMS维基手册
织梦技术论坛
Copyright ©2016 信阳市瑞沃轻钢建材有限公司 版权所有
网站地图