搜!
首页
轻钢别墅效果图
轻钢别墅案例
轻钢别墅造价
轻钢别墅问答
行业知识
关于我们
瑞沃轻钢别墅
>
轻钢别墅案例
>
农村二层轻钢别墅,外观简单漂亮
描述
很多朋友都是长期在城里工作,只是偶尔回农村里住,这样建套简单大方的自建房,更方便实用,不需要花更多的心思来打扫房屋。下面推荐的这套农村自建房是二层轻钢结构,户型方正,12x12米,回村建一栋相当实惠。
本户型是二层农村
轻钢别墅
,外观简单大气,外墙和文化石相结合的装饰,富有现代气息,户型合理,采光通风良好,屋顶有个休闲露台,住起来非常的舒适、实用,而且整套别墅造价比较低,适合普遍农村地区。
开间:12.4米
进深:12.3米
占地面积:136.7平方米
建筑层数:2层
建筑高度:7.9米
屋顶形式:坡屋顶
建筑结构:轻钢结构
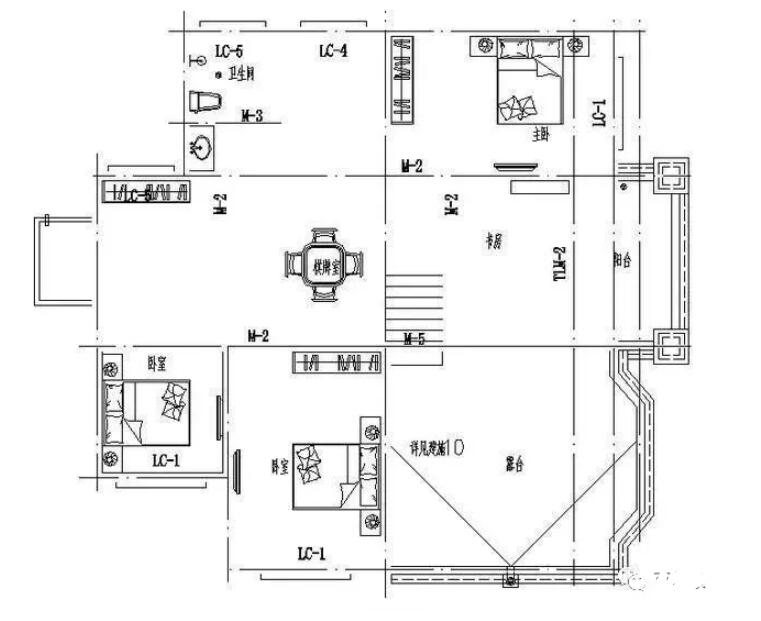
一层有堂屋、客厅、餐厅、厨房、卧室、卫生间。双客厅的设计,堂屋可以摆放神位,客厅用来招待;餐厅面积大,方便家庭聚餐;有两间卧室,可以当成老人房和客房使用。
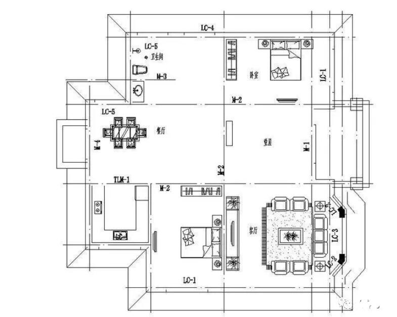
二层有棋牌室、书房、卧室、卫生间、阳台、露台。和亲朋好友聚会的时候,可以在棋牌室娱乐一下;书房外有个小阳台,光线充足,适合办公学习;有3间卧室,在布局上不浪费空间,方便收拾;露台晾晒衣物或是休闲都是不错的好去处。
上一篇:
外观非常清新的二层轻钢别墅户形
下一篇:
一套造型别致的轻钢别墅户型
在线客服 :
服务热线:18790495865(WeChat/whatsapp)
电子邮箱:norrylau@foxmail.com
置业经理:13462075324(刘昊)
公司地址:信阳市鸡公山大街农林学院对面
友情链接:
织梦CMS官方
DedeCMS维基手册
织梦技术论坛
Copyright ©2016 信阳市瑞沃轻钢建材有限公司 版权所有
网站地图