二层轻钢别墅设计方案

二层轻钢别墅设计方案1
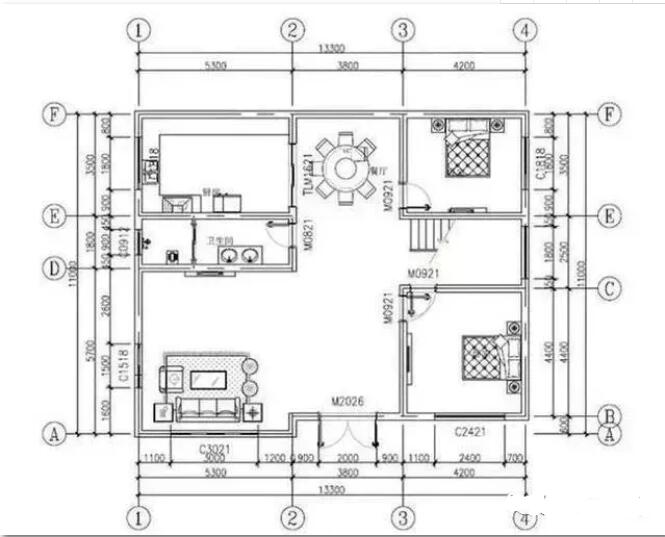
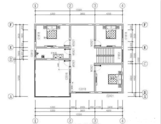
一款大众户型的二层轻钢别墅设计方案,户型设计规整,外观设计简洁大方,建筑设计尺寸:开间13.3米,进深11米,建筑占地146平米,建筑高度9.3米。
二层轻钢别墅设计方案2
二层轻钢别墅设计方案3

二层轻钢别墅设计方案4


       轻钢别墅
,又被称为轻钢结构房屋,其主要材料是由热镀锌钢带经冷轧技术合成的轻钢龙骨,经过精确的计算加上辅件的支持与结合,起到合理的承载力,以取代传统房屋。
  优点:
  轻钢结构的技术及产品配置非常成熟,产业化程度高,是北美近百年建筑技术和建材工业发展的结晶。建筑结构使用的镀锌钢板抗腐蚀性能优异经久耐用,其在正常使用的情况下的使用年限为275年。
  轻钢结构的抗震性能远优于传统的混凝土和砖混住宅。同时,由于轻钢结构的结构自重轻,单位面积重量仅相当于同等面积砖混结构重量的1/4,所以其基础处理简便,适用于大多数地质情况。钢结构住宅不再像木结构住宅那样担心白蚁的危害。
  由于结构所用的钢料均采用工厂化加工,所以轻钢结构别墅的结构精确度相当高,一栋别墅的结构体系由上万个构件组成,每个构件的平均误差低于2毫米,确保了房屋的品质,是传统的建筑方式所无法达到的。
  具有以下四种特点:
  1、结构稳定。
  2、造价低廉。
  3、轻型钢结构别墅屋内空间的跨度比混凝土建筑的跨度大。
  4、工期短,比常规建筑要快的多。
 

在线客服 :

服务热线:18790495865(WeChat/whatsapp)

电子邮箱:norrylau@foxmail.com

置业经理:13462075324(刘昊)

公司地址:信阳市鸡公山大街农林学院对面

Copyright ©2016 信阳市瑞沃轻钢建材有限公司 版权所有 网站地图